Raum & Technik
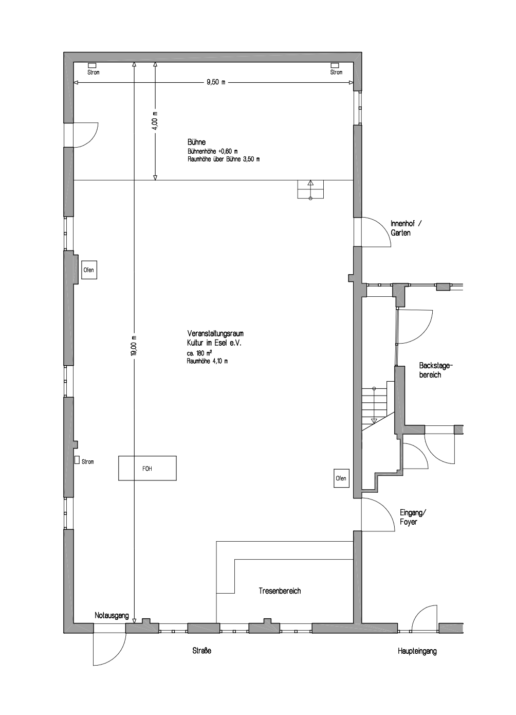
Es steht ein über 180 qm großer Raum mit einer knapp 40 qm großen Bühne zur Verfügung.
Bestuhlt fasst der Raum ca. 180 Zuschauer. Die Theke ist im selben Raum, die 60 cm hohe Bühne hat einen direkten Außenzugang, auf beiden Seiten der Bühne gibt es getrennte Drehstromzugänge und verschiedene, andere getrennte Stromkreise.
Kontakt in Technikfragen:
Eventtechnologie Frank Meyer
Waldstr. 16
37574 Einbeck
Tel. 05561 – 82773
Fax 05561 – 81166
Mobil – 0172 5649561
info@fmeyer.eu

